1600 Zenobia StreetDenver, CO 80204




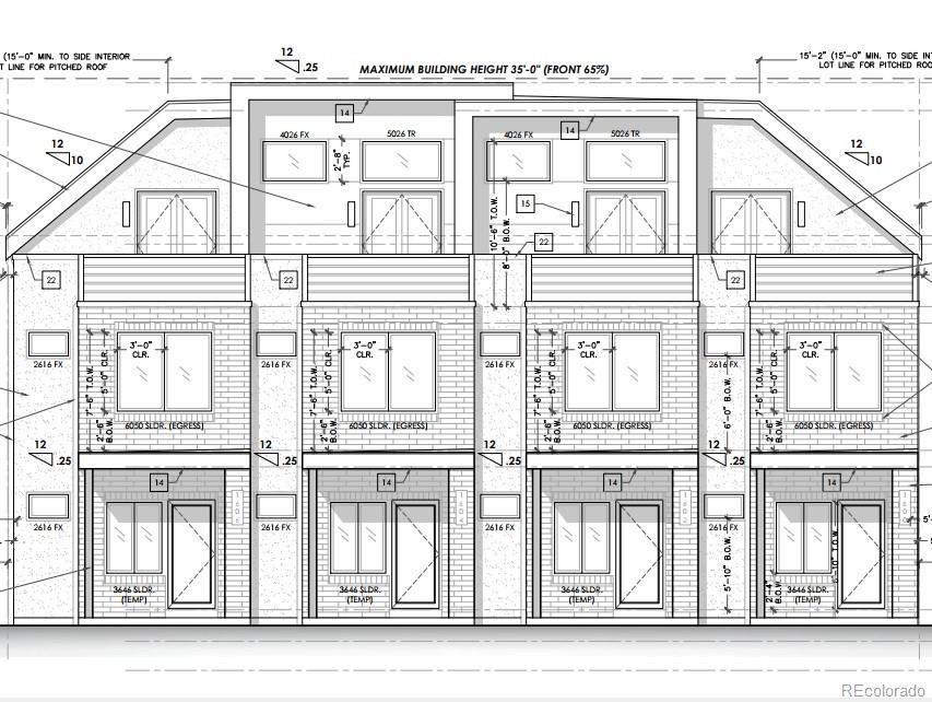
SHOVEL READY! All the hard work is done. No lengthy wait times for design, development, and permit approval. This premier Sloan’s Lake development opportunity is just one block from the lake, and is city approved with permit ready plans for four (4) beautifully designed units, each 2030 sqft., and each with an oversized 1-car garage. You can immediately start construction once the existing home is demoed. And for those not prepared to start building right away, the existing home is a turn-key rental that recently rented for $4,200 a month, so the property will generate income while you wait. The well-maintained attractive brick ranch is 2700+ sqft., and sits on a large 9000 sqft. corner lot. It’s 5 bedrooms, 2 baths, with a 2-car detached garage, and features all brick construction, hardwood floors, a nicely sized kitchen with stainless appliances, new roof, updated windows, newer HVAC, and a large fully fenced yard with a multi-zone sprinkler system and a large storge shed. The basement of the home can be accessed from an exterior door, allowing for house hacking opportunities, as well as a variety of configurations as a rental. This home is move-in ready, but presents limitless opportunities for remodeling, additions, or popping the top if that is more interesting to you than a full development project. With tons of high-end redevelopment happening all around the property, you will be in good company as either a homeowner or a developer.
| 12 hours ago | Listing updated with changes from the MLS® | |
| a month ago | Price changed to $995,000 | |
| 3 months ago | Listing first seen on site |
The content relating to real estate for sale in this Web site comes in part from the Internet Data eXchange ("IDX") program of METROLIST, INC., DBA RECOLORADO real estate listings held by brokers other than The Iris Realty Group Inc are marked with the IDX Logo. This information is being provided for the consumers' personal, non-commercial use and may not be used for any other purpose. All information subject to change and should be independently verified.
Ready to Make Your Move?
Did you know? You can invite friends and family to your search. They can join your search, rate and discuss listings with you.