9195 Pierce Street 3Westminster, CO 80021



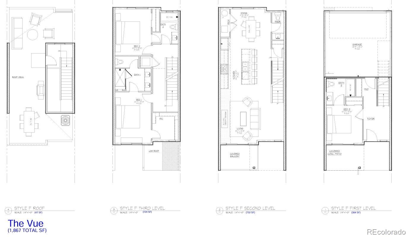
**NOW SCHEDULING TOURS** Model Scheduled to be open in November. This home is at the drywall stage. Prospective buyers can come in and select the finish package of their choice. It will be about 60 days to close once we are under contract. Luxury Townhome at Greenlawn Towns! The Vue plan is an all-electric home with 867 square feet of outdoor living—rooftop deck, covered balcony, and patio with mountain views. This home features 3 beds, 4 baths, a private entry-level suite or office, upper-level laundry, and an open-concept living area. The primary suite includes a walk-in closet and spa-style bath. Optional gourmet kitchen available. EV-ready 2-car garage. Enjoy trails and open space nearby, plus walkable access to shops, dining, and entertainment in Downtown Westminster. Easy commute to Denver or Boulder via Hwy 36. Customize with curated designer finish packages. Exclusive Launch Pricing on our first building—don’t miss out! Seller is both the builder and a licensed broker.
yesterday | Listing updated with changes from the MLS® | |
yesterday | Listing first seen on site |

The content relating to real estate for sale in this Web site comes in part from the Internet Data eXchange ("IDX") program of METROLIST, INC., DBA RECOLORADO real estate listings held by brokers other than Montano Properties are marked with the IDX Logo. This information is being provided for the consumers' personal, non-commercial use and may not be used for any other purpose. All information subject to change and should be independently verified.
Did you know? You can invite friends and family to your search. They can join your search, rate and discuss listings with you.