Ready to Make Your Move?
Text or Call David and Tom
720-408-7409


Save
Ask
Hide
Share
$699,000

16781 E Kettle Avenue
Centennial, CO 80016

Single Family Residence|Sold 04/30/2026
4
Beds
4
Total Baths
1
Full Bath
3
Partial Baths
2,581
SqFt
$271
/SqFt
2026
Built
Subdivision:
Vermilion
County:
Arapahoe
Call Now: 720.408.7409
Is this the listing for you? We can help make it yours.
720.408.7409
Save
Ask
Hide
Share

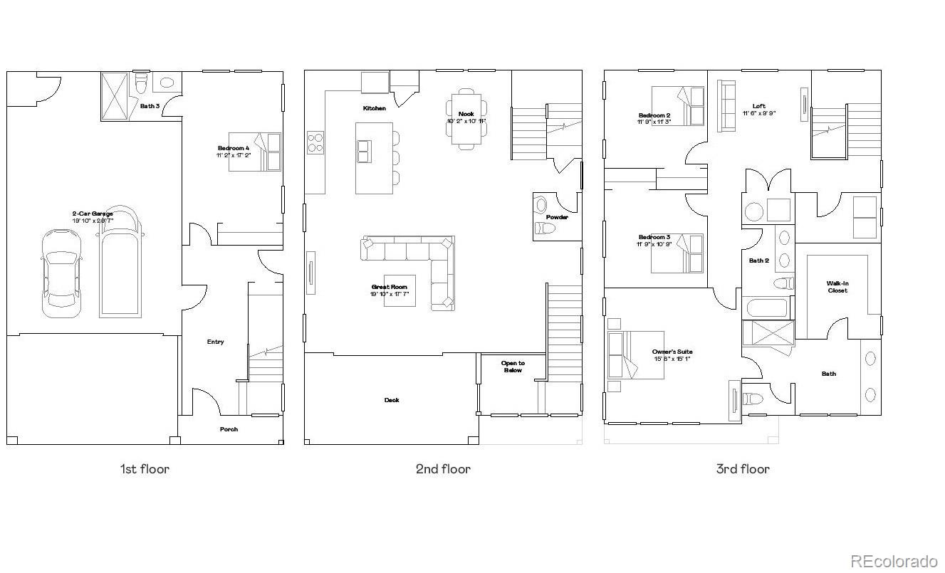
**Contact builder today about Special Financing for this home - terms and conditions apply** Anticipated Completion May 2026! Gorgeous Overlook 3-story in the brand new Vermilion community is Northeast facing and features 4 beds (3 upper / 1 lower), 3.5 baths, loft, great room, kitchen, 2.5 car garage and crawlspace. Gorgeous finishes and upgrades throughout including Quartz package, luxury vinyl plank flooring, stainless steel appliances, spacious balcony and more. The builder provides the latest in energy efficiency and state of the art technology with several fabulous floorplans to choose from. Energy efficiency, and technology/connectivity seamlessly blended with luxury to make your new house a home. Vermilion Creek offers single family homes for every lifestyle. Close to dining, shopping, entertainment and other amenities. Photos are model only and subject to change. Finishes subject to change. Private Fencing included with this home. Adjacent to community green area. Enjoy easy access to Tagawa Gardens, nearby Trails and Cherry Creek schools.

Save
Ask
Hide
Share
Listing Snapshot
Bedrooms 
4
Total Baths 
4
Full Baths 
1
Partial Baths 
3
Inside Area (SqFt) 
2,581 sqft
Lot Size 
0.06 Acres
Year Built 
2026
MLS® Number 
6871094
Status 
Sold
Property Tax 
$8,568
HOA/Condo/Coop Fees 
$44 monthly
Sq Ft Source 
Builder
Friends & Family
Recent Activity
3 weeks agoListing updated with changes from the MLS®
General Features
Acres 
0.06
Attached Garage 
Yes
Garage 
Yes
Garage Spaces 
2
Home Warranty 
Yes
Levels 
Three Or More
Parking 
ConcreteAttached
Parking Spaces 
2
Pets 
Cats OKDogs OKYes
Property Condition 
Under Construction
Property Sub Type 
Single Family Residence
Security 
Carbon Monoxide Detector(s)Smoke Detector(s)
Sewer 
Public Sewer
SqFt Above 
2581
SqFt Total 
2581
Utilities 
Natural Gas AvailableElectricity AvailableElectricity ConnectedNatural Gas ConnectedPhone Available
Water Source 
Public
Interior Features
Appliances 
DishwasherDisposalMicrowaveRefrigerator
Basement 
Crawl Space
Cooling 
Central Air
Flooring 
CarpetTileVinyl
Heating 
Electric
Interior 
Breakfast BarKitchen IslandOpen FloorplanWalk-In Closet(s)
Laundry Features 
In Unit
Main Level Bedrooms 
1
Window Features 
Double Pane Windows
Bathroom Full 
Level - UpperDescription - Tile floor, dual vanity, neutral tones
Bathroom Half 
Level - MainDescription - Vinyl plank floor, single vanity
Bathroom Three Quarter 
Level - MainDescription - Tile floor, single vanity, step in shower
Bedroom 
Dimensions - 11.9 x 11.3Level - UpperDescription - Bedroom 2: Carpeting, neutral tones
Great Room 
Dimensions - 19.1 x 17.7Level - MainDescription - Vinyl plank floor, neutal tones, open
Kitchen 
Level - MainDescription - Vinyl plank floor, stainless steel appliances, neutral tones, 10'11" x 10'2" breakfast nook, open to great room
Laundry 
Level - UpperDescription - Tile floor, neutral tones
Loft 
Dimensions - 11.6 x 9.9Level - UpperDescription - Carpeting, open, neutral tones
Save
Ask
Hide
Share
Exterior Features
Construction Details 
FrameOther
Patio And Porch 
Front Porch
Roof 
Composition
Windows/Doors 
Double Pane Windows
Community Features
Association Dues 
44
Financing Terms Available 
CashConventionalFHAVA Loan
HOA Fee Frequency 
Monthly
Roads 
Paved
School District 
Cherry Creek 5
Schools
School District
Cherry Creek 5
Elementary School
Red Hawk Ridge
Middle School
Liberty
High School
Grandview
Neighborhood & Commute
Source: Walkscore
Disclosure: Community information and market data powered by Constellation Data Labs. Information is deemed reliable but not guaranteed.
Save
Ask
Hide
Share