26 Kenosha CircleJefferson, CO 80456




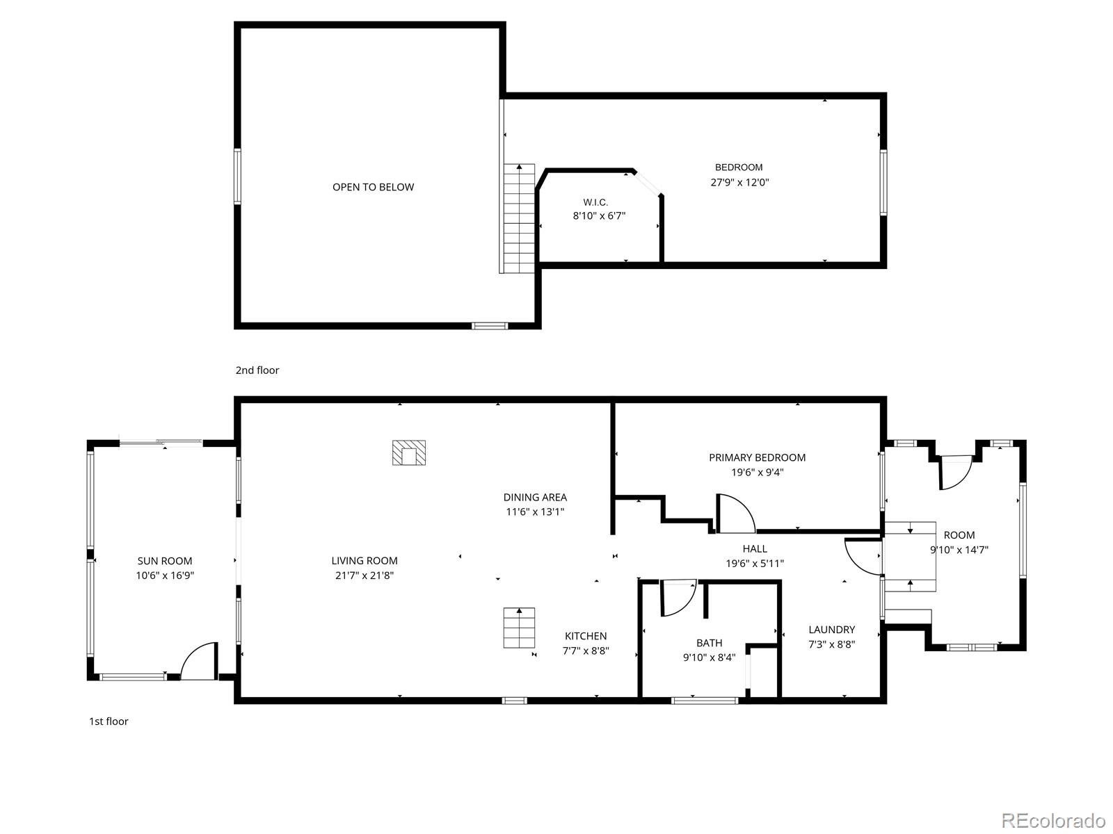
Mountain Retreat with Exceptional Investment Potential Welcome to 26 Kenosha Circle, a distinctive 2-bedroom, 1-bathroom residence offering 1,740 square feet of thoughtfully renovated living space in the serene mountain community of Jefferson, Colorado. This exceptional property represents a rare opportunity, as it is the only home situated on Kenosha Circle, which terminates at a private cul-de-sac, ensuring maximum privacy and tranquility. The residence features a spacious interior complemented by quality renovations throughout, while the maintenance-free metal roof provides lasting durability against Colorado's varied weather conditions. The heated oversized three-car garage with concrete floors offers ample space for vehicles, recreational equipment, or workshop activities. Outdoor enthusiasts will appreciate the heavily treed, mitigated lot showcasing spectacular mountain views from lot 15, along with a functional dog run and chicken coop for hobby farming endeavors. **Remarkable Investment Potential:** This property includes lots 13 and 14, each capable of supporting an additional home with separate well and septic systems—presenting significant rental income opportunities or family compound possibilities. The location delivers year-round accessibility, positioned just minutes from Highway 285. Nature lovers will delight in the proximity to Jefferson Lake and surrounding campgrounds, while renowned destinations including Kenosha Pass, Breckenridge Ski Resort, and Keystone Resort are within easy reach. The charming town of Fairplay provides essential amenities, and Denver International Airport is approximately 90 minutes away. This rural residential gem combines mountain living serenity with practical investment potential. Schedule your private showing today to experience everything this remarkable property has to offer.
| 14 hours ago | Listing updated with changes from the MLS® | |
| 15 hours ago | Listing first seen on site |
The content relating to real estate for sale in this Web site comes in part from the Internet Data eXchange ("IDX") program of METROLIST, INC., DBA RECOLORADO real estate listings held by brokers other than High Ridge Realty are marked with the IDX Logo. This information is being provided for the consumers' personal, non-commercial use and may not be used for any other purpose. All information subject to change and should be independently verified.
Ready to Make Your Move?
Did you know? You can invite friends and family to your search. They can join your search, rate and discuss listings with you.