704 S Monaco Street ParkwayDenver, CO 80224




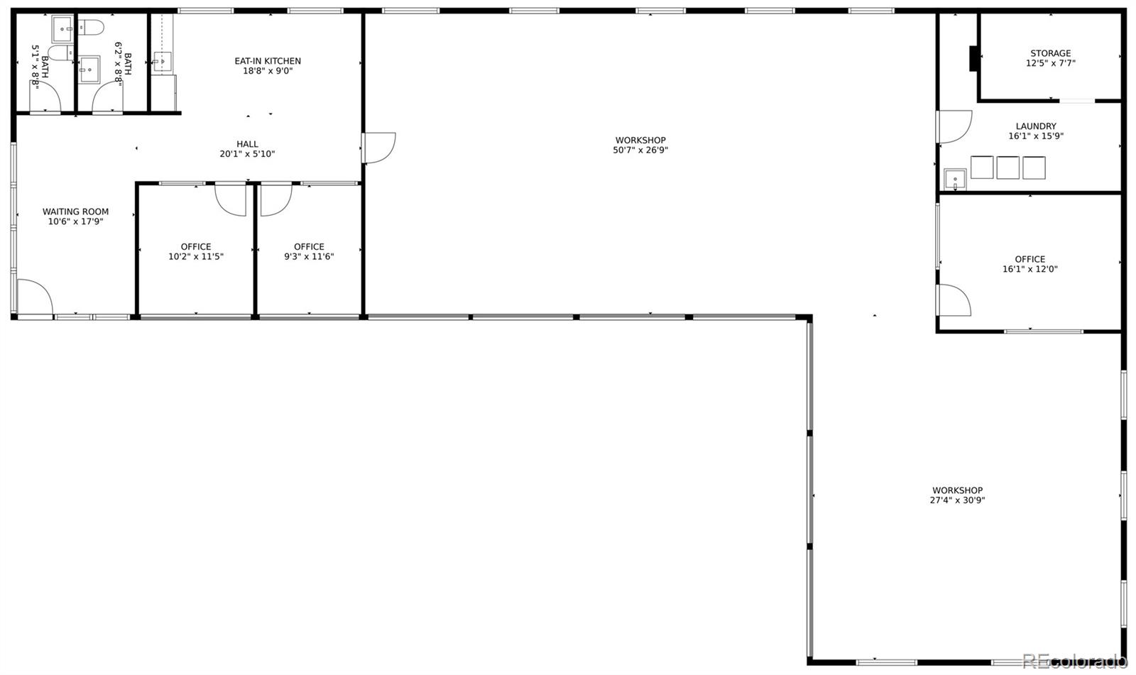
This commercial building offers a new roof, dual combo HVAC units, and all new LED lighting. A newly resurfaced parking lot and improved drainage complement the new interior and exterior paint. On the inside, there is a fully rehabilitated office suite, two new bathrooms, a new kitchen, conference and meeting space, and two private offices. Floor drains are throughout the building, all leading to a recently jetted and serviced sand trap. New and owned security system. There is a large storage area with laundry facilities. Eleven vehicles are consistently and comfortably stored within the building, with 9 off-street parking spaces.
| 2 months ago | Listing updated with changes from the MLS® | |
| 2 months ago | Listing first seen on site |
The content relating to real estate for sale in this Web site comes in part from the Internet Data eXchange ("IDX") program of METROLIST, INC., DBA RECOLORADO real estate listings held by brokers other than Fuller Real Estate Llc are marked with the IDX Logo. This information is being provided for the consumers' personal, non-commercial use and may not be used for any other purpose. All information subject to change and should be independently verified.
Ready to Make Your Move?
Did you know? You can invite friends and family to your search. They can join your search, rate and discuss listings with you.